255 115 ₽/м²
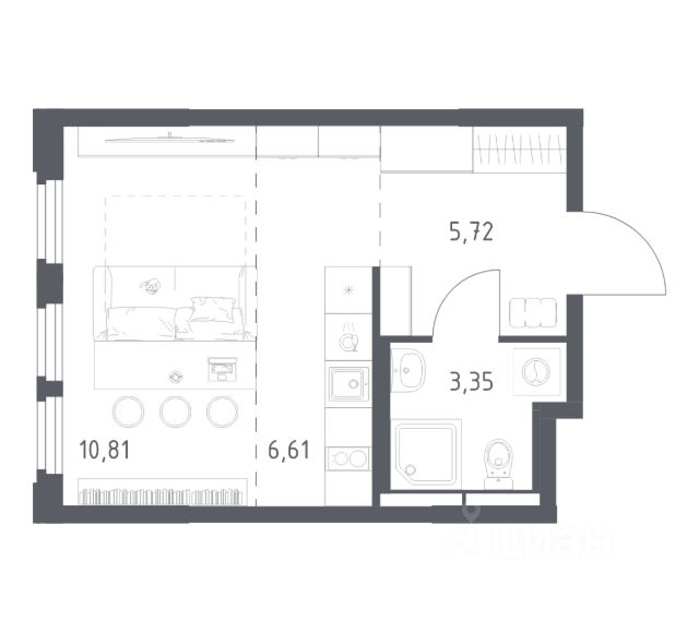
Строим кварталы для жизни с заботой о будущем. Предлагается студия комфорт-класса площадью 22.85 кв.м в корпусе 1 на 9-м этаже, в жилом комплексе "Космический Квартал". Квартиры комплекса - на выбор: могут быть как с отделкой, так и без. В случае с готовой отделкой в комнатах и прихожей уже будут обои, натяжные потолки и ламинат, а в санузлах - керамогранит на полу и керамическая плитка на стенах. Мы подведем все коммуникации и установим сантехнику. Светлые тона визуально делают комнаты еще просторнее. Вы легко воплотите любые идеи по обустройству и создадите интерьер в современном или классическом стиле. Можно сразу заказать кухню, комплекты мебели, светильники, декор и даже посуду в нашем маркетплейсе - мы полностью подготовим квартиру к новоселью. Приобрести квартиру возможно по специальным акциям от застройщика, с текущими условиями акций можно ознакомиться в блоке "Акций". Цена динамическая и может отличаться, уточняйте актуальность у застройщика. "Космический Квартал" находится в Московской области, в Королеве. В Королеве находятся несколько парков и лесов, а реки Клязьма и Яуза окружают наукоград с двух сторон. Путь до Москвы будет быстрым и удобным: до МКАД - 20 минут на автомобиле, а до ж/д станция Болшево - 8 минут на авто или 20 минут пешком. В проекте предусмотрены собственный детский сад, многоуровневые паркинги, а также магазины, спортзал, ресторан и аптеки на первых этажах домов. Неподалеку от квартала находятся городские гимназии 3 и "Ковчег" и лицей 4. "Космический Квартал" - это 3 монолитных дома высотой 12-17 этажей. Во внутреннем приватном дворе-парке будут детские и спортивные площадки. А для занятий спортом будут обустроены воркаут-пространства. Все подъезды - с безбарьерным входом. В лобби есть помещения для велосипедов и колясок. На техническом этаже - индивидуальные кладовые для сезонных вещей. Продуманные планировки от небольших студий до просторных 4-комнатных квартир с гардеробной, постирочной и гостевым санузлом. Квартиры сдаются как с отделкой, так и без нее.










































































