Мы используем куки-файлы. Соглашение об использовании
Площадь355 м²
Этаж1 из 2
Выс. потолков5.6 м.
ПомещениеСвободно
Отчёт о привлекательности объектаУзнайте, насколько помещение и район подходят для вашего бизнеса
Что входит в отчёт
  • Охват населения
  • Пешеходный трафик
  • Автомобильный трафик
  • Средний бюджет семьи по району
  • Арендные ставки рядом
  • Точки притяжения
  • Конкуренты в радиусе 1 км
  • Рекомендации по выбору места для бизнеса
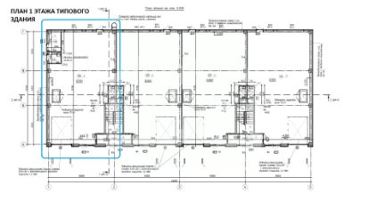
1136175. Предлагается блок общей площадью 355 кв. м. в современном проекте формата Лайт индастриал в г. Королёве. Преимущества: Расположен в центральной части города Королёва, рядом с жилыми кварталами и ТЦ Глобус. Заезд с Калининградской улицы. Развитая инфраструктура, рядом остановки общественного транспорта. Удобная логистика для любых видов транспорта, 8 км от МКАД. Огороженная охраняемая территория, пропускная система, видеонаблюдение, круглосуточный доступ. Профессиональная управляющая компания. Склад + шоурум + производство в одном пространстве, собственная наземная парковка на территории комплекса. Полы с антипылевым покрытием. Грузовой подъемник на 2 этаж. Автоматические подъемно-секционные ворота на уровне "0" (3*4,3 метра). Центральные городские системы водоснабжения и водоотведения. Отопление от собственной газовой котельной. Доступ в помещение - май 2026 года. Технические характеристики: Общая площадь блока - 355 кв. м, из которых: на 1 этаже - 177,5 кв. м, на 2 этаже - 177,5 кв. м. Рабочая высота потолка: 1 этаж - 5.6 м, 2 этаж - 5,4 метра. Нагрузка на пол: 5 т/кв. м на 1 этаже и 1 т/кв. м. на 2 этаже. Выделенная электрическая мощность: 50 ватт на 1 кв. м. Так как корректный адрес отсутствует на Яндекс.Картах, введен ближайший.
lock

Войдите или зарегистрируйтесь
для просмотра информации

Просматривайте условия сделки и всю информацию об объекте
Сохраняйте фильтры в поиске и не вводите заново
Доступ к избранному с любого устройства
Неограниченное добавление в избранное
Позвоните автору
Вам ответят на все вопросы
Остались вопросы по объявлению?
Позвоните владельцу объявления и уточните необходимую информацию.
  • Инфраструктура
  • Похожие рядом
  • Тип зданияСкладской комплекс
  • Категория зданияСтроящееся
  • Общая площадь355 м²
Помощь надёжных риелторов
Риелтор партнёр Циан поможет купить или продать любую недвижимость
674 500 ₽/мес.

Прямая аренда (от года)

8 869 $/мес.
7 526 /мес.
Цена за метр
22 800 ₽ в год
Налог
УСН
Комиссия
нет
Коммунальные платежи
не включены
Эксплуатационные расходы
не включены
Агентство недвижимости
Документы проверены